Navy 82B1 Switching Center - diagrams & photos

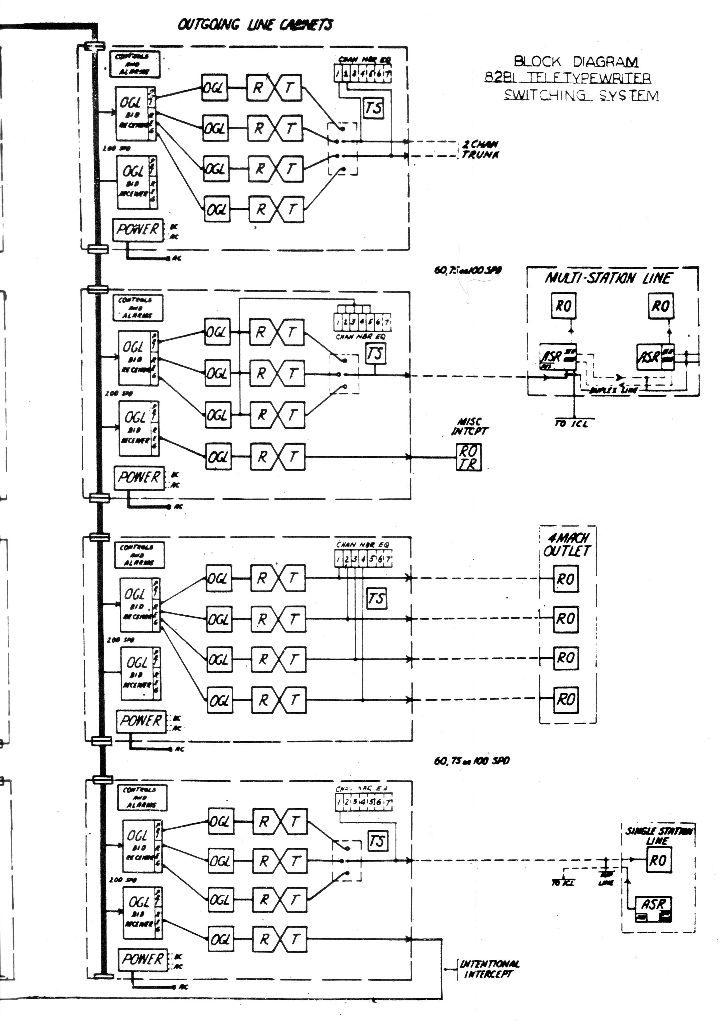
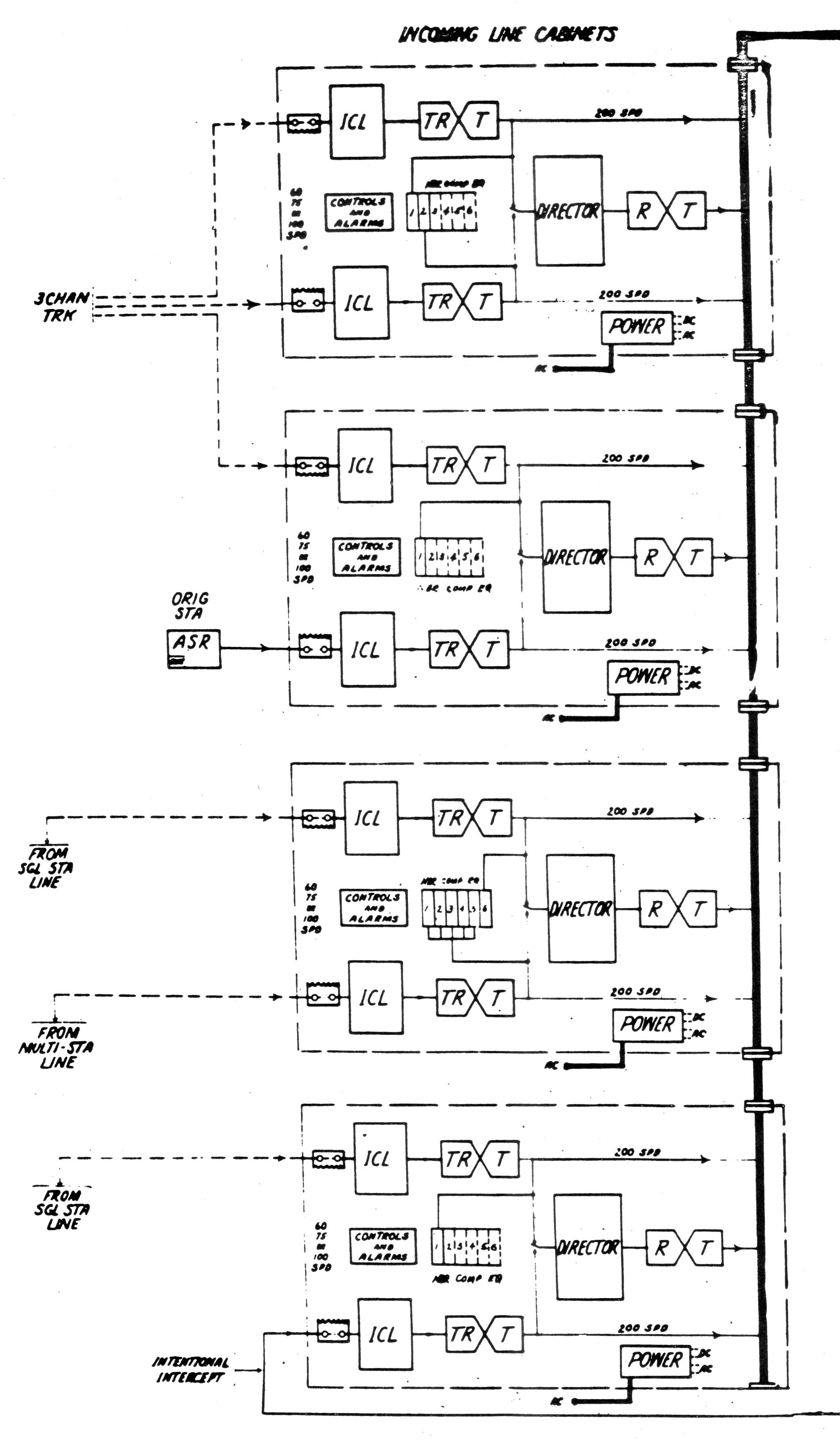
The 82B1 system was an automatic switching system with incoming and outgoing teletype lines. Cross-office traffic was at 200 wpm.

See Bell Laboratories Record, May 1960, August 1960, February 1961, April 1961, and October 1961.

82B1 system at Cheltenham 1959
82b1-chelt-1959-hr.jpg (9114217 bytes)
82B1 system at Trenton 1950s
trenton-82b1-photo.jpg (1018592 bytes)
Trenton - 1972
trenton-7206.jpg (4415155 bytes)

The first Navy 82B1 was opened in 1958 at Trenton NJ. Subsequent centers were opened at Cheltenham, San Diego, Stockton, and Norfolk. 
The Trenton system diagram is below - Here are the PDF versions for all 5 system diagrams...

General 82B1 Block diagram

82b1-blk-00.JPG (966194 bytes)

composite scan
  - individual pieces are to the right

82b1-blk-02.JPG (406769 bytes) 82b1-blk-01.JPG (575025 bytes)

US Navy Trenton 82B1 System

trenton-82B1-00.JPG (1074209 bytes)

Composite scan
   - individual pieces are to right

trenton-82B1-02.JPG (286775 bytes) trenton-82B1-01.JPG (577390 bytes)
trenton-82B1-04.JPG (317170 bytes) trenton-82B1-03.JPG (376165 bytes)
Incoming & Outgoing Line Cabinets
82b1-pix-01.JPG (338942 bytes)

82b1-pix-02.JPG (321088 bytes)

Reperforator-Transmitter
82b1-pix-03.JPG (120399 bytes)
Incoming Cabinet - Apparatus Side
82b1-pix-04.JPG (237774 bytes)
Incoming Cabinet - Front
82b1-pix-05.JPG (190236 bytes)
Incoming & Outgoing Cabinets - Rear
82b1-pix-06.JPG (283792 bytes)
Incoming Cabinets - Rear
82b1-pix-07.JPG (165632 bytes)
Incoming Cabinet - Wiring Side
82b1-pix-08.JPG (247813 bytes)
Incoming Cabinet - Roof Panel
82b1-pix-09.JPG (261931 bytes)
Test Bays
82b1-pix-10.JPG (331905 bytes)
Test Bench
82b1-pix-11.JPG (362481 bytes)
Outlying Station
82b1-pix-12.JPG (249742 bytes)
82B1 Pilot Installation at Main Navy, Washington DC 1955

82B1-pilot.jpg (6027338 bytes)


3.4.2 Automatic Relay Center (82-B-1). 
      The 82-B-1 is a fully automatic message-switching center (Figure G-5). Single- and multiple-address messages in the 5-unit International Number 2 Teleprinter Code in ACP 127 format are handled. This center consists primarily of self-contained ILU's and OLU's, which function as a complete switching center with no supplementary cross-office equipments. Each incoming or outgoing line can be arranged to operate at 60, 75, or 100 wpm.
      The ILU director is the key element in this switching center. It reads, analyzes, and stores all routing indicators, and selects the proper outgoing line for each addressee. When the outgoing line is identified, the director sends a request to transmit to the selected unit. Cross-office transmission does not start until the outgoing line typing reperforator is free. A message being sent to one or more outgoing lines automatically brings about routing line segregation. An error in the heading sends the message to the intercept position for correction, after which it is reintroduced into the system. A preemptive message is given preferential treatment, but no outgoing messages are canceled in its favor.
      Each ILU contains three reperforator-transmitters, two for incoming lines, the other for the director circuit. These units copy the message and send the information cross office to the OLU. The director circuit reads and stores the routing indicators and precedence and indicates that the cross-office path is established wherein the message is automatically transmitted to the OLU and the director disconnects. If the request to transmit is denied, the ILU waits until the outgoing line is free. Storage for 12,000 characters is provided at each ILU.
      When the ILU director detects a multiple-address message, it translates all the routing indicators, etc., but does not transmit until all the outgoing lines are available. A monitor records a tape copy of each outgoing message.
      Each OLU serves four outgoing lines with associated reperforator-transmitter units controlled by two bid receiver circuits. Each OLU also contains two crossbar switches, which perform all cross-office connections. Each outgoing crossbar switch is capable of connecting to any ILU.
      Incoming messages with heading errors are automatically sent to the intercept position where they are corrected and then reinserted into the system through a local send station.

82b1-diag.JPG (73080 bytes)