US Navy Communication Control Links - Microwave Systems for Inter-site links

Used for transferring data from COMMSTA to/from remote Transmitter and Receiver Sites

See also info on multiplex systems

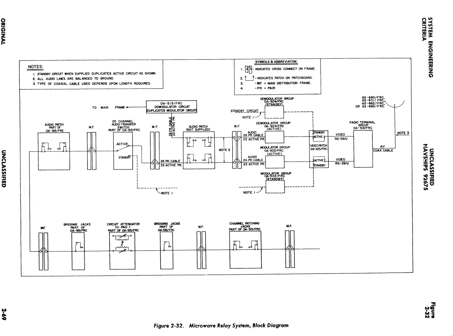
shore-2-32.JPG (197958 bytes)
Microwave Relay System Block Diagram 
(link from Comm Station to Transmitter and Receiver sites)


"DATA SUPPLIED ON RADIO AND TELEGRAPH EQUIPMENT"
By Charles H. Davis, Electronics Shore Division, Bureau of Ships
BuShips Journal Dec 1954

NAVY MODEL UQ RADIO RELAY LINK EQUIPMENT

Radio Relay Link Equipment UQ is a microwave system consisting of several bays of equipment which may be used in various combinations to meet different operational requirements.
The r-f portion of the equipment operates in the 1700 to 1850 megacycle frequency band; therefore, communication between stations is limited to line-of-sight operation. Highly directional parabolic antennas are employed to compensate for the relatively low power output of the transmitter. Standby r-f equipment is used to provide a high degree of system operational reliability. The standby r-f equipment is automatically switched into the system when a failure of the normal operating unit occurs. Relatively unattended operation of the UQ equipment is thereby achieved.

Equipment in Radio Relay Link 
For purposes of explanation, the radio relay link may be considered to comprise the following categories of equipment:
1. Terminating equipment which permits patching, line level adjustment, and termination of incoming and outgoing audio lines.
2. Multiplex equipment which consists of modulating and demodulating units. The modulator combines up to 23 audio channels received from the terminating equipment and provides a PTM video pulse train to the transmitter. The demodulator receives a PTM video pulse train from the receiver and delivers up to 23 audio channels to the terminating equipment.
3. Radio frequency equipment which consists of transmitter, receiver, and associated instruments. These units provide for the r-f transmission and reception of the multiplexed signals.
4. An antenna system which consists of six-foot or ten-foot diameter parabolic antennas and associated transmission line and towers.

The radio frequency equipment of the Radio Relay Link Equipment UQ provides all the apparatus (except for transmission line and antenna towers) necessary for transmission and reception of pulsed r-f carrier in the 1700 to 1850 megacycle frequency range. To permit a transmitter-receiver combination operating over the same transmission path to operate into a single antenna and transmission line, a band-pass band-rejection filter, T-R Diplexing Filter, is provided. The output of the transmitter and the input to the receiver operating over the same transmission path are connected to the diplexing filter, which in turn is connected to the transmission line.

Peak Output is 30 Watts
The transmitter provides a pulsed r-f output of 30 watts (peak) in the frequency range stated above. Its output power is transferred through the diplexing filter to the antenna where it is radiated to the distant station. The antenna consists of a parabolic reflector having a single dipole mounted at its focal point. This type of antenna is highly directional in all planes.
Pulsed r-f carrier transmission is comparable to ultra high-speed keyed CW transmission since carrier power is radiated only when the transmitter oscillator is being modulated by individual pulses of the video pulse train.
The video pulse train for modulation of a terminal station transmitter is provided by the modulator section of the multiplex equipment.
At a repeater station the video pulse train is provided either by a receiver, or, if drop and insert equipment is used, by the modulator section of the multiplex portion of that equipment.
From the distant station transmitter, the receiver receives a pulsed r-f input which is transferred from the local antenna through the diplexing filter. The receiver input impedance is 50 ohms. The r-f signal is demodulated in the receiver, amplified approximately 80 db, and presented at the 70-ohm impedance output of the receiver as a video pulse train. This pulse train can be used to modulate another transmitter (at a repeater station) or can be fed to the demodulator equipment of the multiplex equipment (at a terminal
station).
For each transmitter-receiver combination, one power supply is required.

Input Power Should Be Regulated
Input power to each r-f bay should be regulated by the voltage regulator which is provided. The voltage regulator may be located in the station at the discretion of the installer. This regulator has a capacity of 6 KVA and will regulate power to the bays to within plus or minus one percent provided that input power to the regulator does not vary more than plus or minus ten percent. Therefore, bays in addition to the r-f bays (and within the capacity of the regulator) also may be regulated. The various equipment bays will operate without the voltage regulator if a-c power to the bays is regulated to within plus or minus ten percent; however, the equipment may be operating at reduced efficiency—sacrificing power output and sensitivity.
Although the individual power supplies are provided with strapping to permit operation from 115 to 230 volts, it should not be necessary to revise this strapping when a change in input power is made, since the voltage regulator also is designed to provide a 115-volt output for either 115- or 230-volt regulator input, and all equipment is strapped at the factory for 115-volt operation. (Above is valid if all bays are on the regulators.)

Standby Equipment Supplied
To provide for continuous operation of the radio link in the event of failure of the equipment, standby transmitting and receiving equipment is supplied, together with the equipment required for automatically transferring operation to these units when a failure is detected. The automatic switchover equipment employed depends upon whether the station is a terminal or a repeater.
At a terminal station, one standby panel (transmitter, receiver, and power supply) is issued with each normally operating panel. This is referred to as 100 percent standby. At a typical repeater station, however, where two normally operating receiver-transmitter-power supply combinations (one set for each direction of transmission) are being used, only one standby panel of each type (transmitter, receiver, and power supply) is provided. This is referred to as 50 percent standby.
The multiplex equipment contains the means for combining up to 23 channels of voice-frequency information into a time-modulated pulse train for transmission. It also contains the means for receiving a time-modulated pulse train, separating each of the 23 channels from that pulse train, and restoring the original audio signals for delivery to the channel wire line or circuit.

Modulator and Demodulator
Combining the several channels into one pulse train is performed in the multiplex modulator equipment. Separation of the several channels and the restoration of the originally transmitted channel audio signals are done by the multiplex demodulator equipment. Each channel has an audio frequency range of 300 to 3400 cycles; however, by the combination of two special channel modulators and two special demodulators, the audio frequency range is increased to 300 to 6000 cycles, permitting the transmission of wider band intelligence over the radio relay link network. Each channel modulator-demodulator pair is a four-wire circuit.
All panel equipment (with the exception of the terminating unit) is mounted in a standard cabinet CY-614/G. Standard 19-inch mounting rails are attached to the inner sides of the cabinet for mounting the panels, and each cabinet has a front and rear access door.


Navy Microwave Control Link
By G. C. Josephson, Communications Facilities Engineering Branch, Bureau of Ships
BuShips Journal Dec 1958

Before entering the microwave communication control link (CCL) field, the Navy made a survey of commercial equipments. As a direct result, a contract was let for the development of a pulse time modulated set for operation in the 1700 to 1850 megacycle Government frequency band. The equipment, designated CXJY, had 23 standard audio channels (300 to 3400 c.p.s.) which, through the use of multiplexing, modulated one radio frequency carrier.
Field testing of the CXJY was in progress between the naval radio stations Cheltenham, Md., and Annapolis, Md., and a repeater station at Suitland, Md., when lack of funds caused termination of the work.
Despite cancellation of the project, the contractor, Federal Telecommunications Laboratories, continued work and developed their model 10A link equipment. About the time model 10A was superseded by model 10B, funds became available to the Navy Department for procurement of CCL equipment, and the UQ was born.
The equipment was originally designated the AN/FRC-24 by the Navy, but because it was merely a Navy version of the contractor's model 10B, the AN nomenclature was dropped, and Navy nomenclature UQ assigned.
Two methods of multiplexing are available to the designer of multi-channel equipment—frequency division and time division multiplexing. Frequency division is the method used in the AN/FCC-3 type of telegraph terminal equipment; time division is the method used in the AN FGC-5 multiplex equipment.

Frequency Multiplexing
Frequency multiplexing consists of transmitting several subcarrier channels simultaneously. Each subcarrier is modulated by specific information, and the subcarriers are separated at the receiving end of a link by means of filters. The specific information is then obtained by demodulation of the subcarrier signal.
The total band width of such a system is the sum of the band widths of the individual channels, plus a guard band between channels. A guard band is necessary to prevent crosstalk, and its band width depends on the sharpness of the transmitting and receiving filters. Thus, assuming a 23-voice channel system with a 1-kilocycle guard band is needed, a total band width of 23 x (3400+ 1000) or 101,200 cycles per second would be required.
Frequency multiplexing of voice channels is excellent for use with cable transmission means because cables having the required band width, signal to noise ratio, and constant gain are obtainable.

Time Multiplexing
The second newer technique is time multiplexing. It has been determined that a train of sine waves may be reproduced accurately if slightly more than two samples per cycle are used instead of the complete cycle. The time period between samples of one communication channel may be used for samples of many other channels if the duration of each sample is quite short, that is, the samples are narrow pulses. Band width requirements for any pulse system depend on the allowable amount of pulse distortion.
Thus time multiplexing is not well adapted to cable transmission, but is excellent for radio transmission, since with most types of modulation it is not affected by the fading to which radio transmission is subject.

Pulse Modulation
In the matter of pulse modulation, the equipment designer has a choice of three kinds of modulation, namely, pulse code, pulse position, and pulse amplitude. The last named is subject to fading distortion. Pulse code modulation requires a greater band width than does pulse position, because less pulse distortion is acceptable for good quality transmission.
Pulse position modulation is unaffected by fading and requires the least band width of any pulse modulation scheme. The distortion at at the "corners" of the pulse, as well as the noise amplitude modulation, is readily removed in a clipping process. This is shown in figure 1.
On the basis of these arguments, time division multiplex and pulse position modulation were chosen for Navy communication control link systems.

Timing
Based on the standard voice channel of 300 c.p.s. to 3400 c.p.s. the minimum acceptable sample rate is 2 x 3400 = 6800 c.p.s. The rate chosen for the UQ is 8000 c.p.s.
Using one pulse for synchronization and 23 for voice channels means that 5.2 microseconds are allowed for each channel. A 0.5-microsecond pulse moved plus or minus 1 microsecond requires 2.5 microseconds.

uq-5812-01.JPG (78626 bytes)
Figure 1. Illustration of clipping, a illustrates 
the transmitted pulse, b the received pulse 
showing noise, distortion, and clipping levels, 
c shows the clipped pulse.
uq-5812-02.JPG (33712 bytes)
Figure 2. An idealized oscillogram of 
one pulse train.

Thus there is a guard time of 5.2 minus 2.5 or 2.7 microseconds. This timing provides excellent crosstalk discrimination (figure 2).
Good reproduction of the original signal, using such a pulse train, requires a total band width of 5.6 megacycles. The choice of operating frequency is necessarily in the microwave region.
As stated previously, slightly more than two samples per cycle are required for accurate reproduction. In the UQ, the sampling rate is 8000 cycles, allowing a maximum audio signal of approximately 3000 cycles.
Certain applications, such as facsimile and AN/FGC-29 equipments, require band widths of up to 6000 c.p.s. To accommodate such signals, a sampling rate equivalent to somewhat more than 12,000 c.p.s. is necessary. In the UQ, the need is met by using 2 channels, 12 channels apart. Since the 8-kilocycle rate generates pulses 125 microseconds apart, the use of two-channel pulses 62.5 microseconds apart is equivalent to a 16-kilocycle sampling rate. Special plug-in channel units are used for this application.

Propagation
Electromagnetic wave propagation in the microwave region is similar to optical propagation.
Problems of refraction, diffraction, and scattering arise. Low power equipment may be used on line of sight paths. High power equipment must be used for obstructed paths.
The earth's surface may be considered as an obstruction. In this case, tropospheric scattering techniques with high power transmitters, large antennas, and sensitive receivers are used.
Microwave communication control links, as used by the Navy, are all line of sight. Just as Fresnel zones apply to optics, so do they apply to microwaves. It has been found that if a clearance of %, of the first Fresnel zone radius exists between the line of sight path and the highest point between the stations, a "free space" signal will be received.
Refraction in the atmosphere causes the waves to bend, and an equivalent earth radius must be used. This is shown schematically in figure 3. There are refraction problems throughout the microwave region.

uq-5812-03.JPG (60997 bytes) Figure 3. a illustrates true earth (lower) and true wave path (upper). b shows
equivalent earth and equivalent (straight) wave path, lower and upper respectively

In addition, as the frequency is increased, precipitation losses begin to be noticeable. The loss is most noticeable when the wavelength approaches rain drop size. Thus, the lowest microwave frequency Government band of 1700-1850 megacycles was chosen for the UQ to minimize precipitation losses.
One advantage of the higher frequencies is the decrease in multipath fading. To demonstrate this advantage, reference is made to optical phenomena (figure 4).
From figure 4 it is apparent that the direct waves (solid line) and the reflected waves (dashed line) will interfere with each other at the point of observation. If they are in phase, enhancement occurs, and if they are 180° out of phase, cancellation occurs. As 0 is moved up and down, interference fringes will be obtained.

uq-5812-04.JPG (57468 bytes) Figure 4. Lloyds' mirror experimental setup, 
L is light source, M is plane mirror, and O is observer. 

The microwave parallel consists of replacing the mirror with the earth's surface, the light source with a transmitter, and the observer with a receiver. Of course, the earth's surface is not a perfect mirror, so complete cancellation does not occur. Also, the difference in the height of 0 between minimum signals decreases with frequency.
At high enough frequencies and large enough antenna apertures, several maxima and minima will be received simultaneously.
Since atmospheric refraction varies, the interference pattern varies, but under the foregoing conditions, fading due to this phenomenon is always evident.
Path surveys must always be made to determine the characteristics of the interference pattern, and meteorological studies must be made to determine the amount of fading caused by multipath propagation. It is interesting to note that in addition to the surface of the earth, an effective reflecting surface in the atmosphere can be, and often is, due to temperature inversion.
Multipath problems can be overcome by proper choice of antenna heights and other readily controlled factors. Precipitation losses cannot be controlled except through the use of rather high power equipment. It is more economical to choose a radiofrequency low enough to minimize precipitation losses.

Reliability
Each Navy microwave link carries 23 voice channels on each radio-frequency carrier. Many of the voice channels carry up to 12 teletype channels, derived through the use of AN/FCC-3 equipment. Failure of one part or tube in the transmitter, for example, would disrupt service on as many as 70 communication circuits.
In order to prevent an outage of this magnitude, each UQ terminal contains two transmitters, two receivers, and automatic switching equipment. In the event of a failure in one transmitter, or receiver, the second one is automatically switched into operation. Of course, if a failure is not immediately repaired, a failure in the second unit could cause an outage on some 70 circuits.

New Developments
Early in 1953 it was recognized that because of radiofrequency spectrum limitations some installations would require more voice channels than could be provided with the UQ. To solve this problem, a contract was entered into for the development of a transmitter and receiver capable of operating in the 1700-2400 megacycle band.
This arrangement would provide for twice as many systems, and hence twice as many channels as the UQ could provide.
In 1954, it was proposed that the automatic switching between active and standby transmitters and receivers be eliminated. The AN/FRC-37 will, when available, contain both of these features. A unique method of obtaining high reliability without switching equipment will be used. Both transmitters and receivers will be in operation at all times. When one transmitter or receiver fails, the signal strength will be decreased by 6 decibels. Otherwise, no effects will be noticed except for an alarm indicating a failure has occurred.
To prevent difficulties due to frequency stability, the crystal oscillators of the two transmitters are slaved one to the other. A dual feed antenna is used; one transmitter and receiver operate on the horizontally polarized wave, and the other operates on the vertical.
Also in 1954, the need for increased channel capacity per terminal was foreseen. Therefore a 45-channel multiplex equipment - AN/FCC-15 - was developed for use with the AN/FRC-37 radiofrequency terminal.
The method of deriving the pulse train and modulating the pulses is simple and unique. A phase shift oscillator is used, with 24 sections in the network. The signal at each section is a sine wave displaced 15° from its neighbors. If the sine wave is biased positively and a pulse is generated at the instant of zero voltage, that pulse will lag the one generated when no bias is applied. In this equipment, the bias is the modulating signal. The method is shown in figure 5. It is apparent that the pulse illustrated in figure 5b occurs earlier in time than that shown in figure 5a. A negatively biased sine wave would generate a pulse later in time than that shown in figure 5a, as shown in figure 5c. The technique requires only one tube for an oscillator, and one for the pulse generator. Since these tubes could be replaced by transistors, a very small package can be obtained.
The new equipments are now undergoing tests, and it is expected that they will be produced in quantity in 1959.

uq-5812-05.JPG (77529 bytes) Figure 5. Illustration of bias method of pulse time modulation. 
a. is pulse time for zero bias. b. is pulse time for positive bias. 
c
. is pulse time for negative bias.